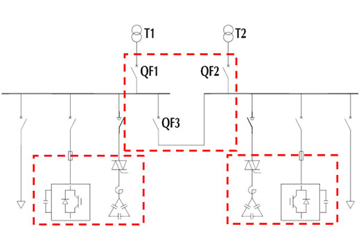
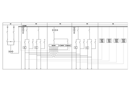
数据中心
行业概述

公共建筑涉及文体教育、科学技术、医疗卫生、行政办公等各个民生环节。安全、稳定、易维护的供配电系统可以保证如商场、酒店、写字楼、大型教育机构、各级政府办公设施中各类电器设施正常工作,各种智能系统稳定运行,有效的保障了环境的舒适度和安全环境,为收益率的提高做出贡献;同时可以保证建筑规模庞大、功能区复杂的现代医院、机场、交通枢纽设施中各种大型设备的安全稳定运行,保障能源的持续供给。

以机场为例, 机场配电系统最重要的就是安全,机场电力负荷要求最高级别的安全性和可靠性,出于安全考虑,控制塔台、机场跑道和航站楼的电力供应不能间断。这部分的负荷为特一级,采用双电源、双回路供电,并配备应急电源。候机楼、外航驻机场办事处、停机坪照明及机务用电、机场宾馆为一级负荷,采用双电源供电。

用户需求
  • 安全可靠

    保持设备长期处于正常、效率高的工作状态,确保配电系统中的重要负荷稳定运行。

  • 易于维护

    配电设备数量众多,维护检修会造成系统断电,设备应该满足快速维护和替换的要求

  • 高性价比

    跟进系统要求提升产品性能,减少工程建设成本,降低系统使用的运营成本,延长使用年限

  • 智能快捷

    全系列产品采用高效通讯方式,实时监测运行情况,通过专业管控平台,实现系统智能化,满足智慧楼宇的需求

解决方案
隐私协议
×

平台信息提交-隐私协议

· 隐私政策

暂无内容



E-MAIL:sales@nsdelectric.cn

中国总部:中国上海普陀区交通路4711号李子园大厦3B01-3B02

制造基地:中国江苏省常熟市高新技术产业园阳光大道58号