数据中心
行业概述

近年来,我国人口老龄化速度正在加快。根据数据,2018年我国65岁以上老龄人口超过1.5亿,占总人口比例的11%,预计到2030年,国内65岁以上老龄人口将超过2.4亿,占国内人口总量的17.1%,占全球老龄人口的四分之一。

国内医疗卫生机构数量也随之快速增加,截止到2019年7月达到100.8万个。与2018年7月底比较,国内医疗卫生机构增加7696个,其中:医院增加1438个,基层医疗卫生机构增加7963个,专业公共卫生机构减少1813个。

用户需求
  • 安全可靠

    保持设备长期处于正常、效率高的工作状态,确保配电系统中的重要负荷稳定运行。

  • 易于维护

    配电设备数量众多,维护检修会造成系统断电,设备应该满足快速维护和替换的要求

  • 高性价比

    跟进系统要求提升产品性能,减少工程建设成本,降低系统使用的运营成本,延长使用年限

  • 绿色节能

    数据中心能耗成本超过运营成本的50%,降低设备自身能耗,打造绿色数据中心将是未来趋势

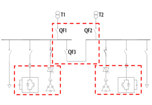
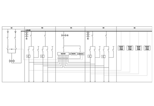
解决方案
隐私协议
×

平台信息提交-隐私协议

· 隐私政策

暂无内容



E-MAIL:sales@nsdelectric.cn

中国总部:中国上海普陀区交通路4711号李子园大厦3B01-3B02

制造基地:中国江苏省常熟市高新技术产业园阳光大道58号